Abbvie
Laminar Plaza pisos13 y 16

Ciudad de Buenos Aires

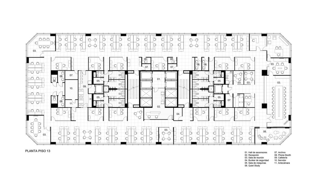
Este proyecto transformo el uso de los espacios existentes, se pasó de un layout cerrado, compartimentado a uno totalmente abierto, colaborativo, flexible según el manual corporativo global de la empresa.

Por ser un espacio en uso, se abordó en 4 etapas crenado pulmones de trabajo para ir rotando los sectores a operar.

La distribución se plasmó en 2 áreas bien definidas, sectores operativos, áreas colaborativas sobre el perímetro y privados, salas de reuniones en las áreas internas y poco iluminadas.

Las áreas administrativas y gerenciales se ubicaron en el piso 13 y en el 16 están los espacios de relax, lúdicos, expansivos y un auditorio para capacitación y eventos.