



















Ubicada sobre un doble lote, y apoyada sobre uno de los lados, crea un jardín que rodea a la casa, aprovechando esto la planta baja totalmente vidriada da la sensación de estar constantemente en el jardín, se borran los límites.
Sol, luz y verde invaden la planta baja.
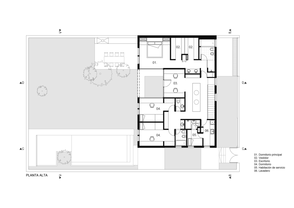
En contraposición en la planta alta las visuales se abren solo hacia el sector trasero del jardín, la fachada hacia la calle es ciega, solamente con aberturas controladas en algunos sectores.
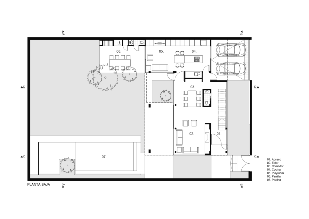
En planta baja se encuentran hall de acceso, estar-comedor, cocina playroom.
En planta alta hall, escritorio, dormitorios de hijos, suite y servicios.
La galería se conecta con el jardín y la piscina que está pensada como una pieza sobre elevada con playa, escalinata y banca continua bajo agua
El almacenaje en distintos ambientes se resolvió como grandes paredes funcionales.
Es una de las primeras casas del estudio sustentable, es totalmente eléctrica y con sistema de energía solar On grid.
Síntesis en el uso de materiales, hormigón armado, vidrio, pisos de placas grises, pisos sintéticos en planta alta, uso de maderas reconstituidas, Steel frame para la tabiquería interior y como revestimiento de fachada. Cabe decir que por el sistema de construcción que se utilizó permitió construirla en 9 meses.