Casa Barrio el Naudir

Escobar

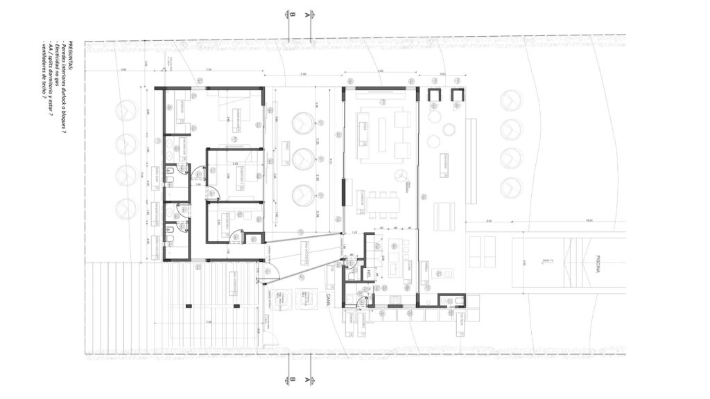
Por requerimiento de los clientes y gracias al tamaño del terreno (1000 m2) la casa se desarrolló en un solo nivel.

Se propuso armar 2 bloques bien definidos

Uno para sector privado, suite dormitorio y escritorio, el otro social estar-comedor, cocina parrilla, galería.

Articulando los 2 se encuentran la pieza de unión que es el hall conector. Un techo cerrado por grandes cristales, efecto embudo –manga de aeropuerto. Este armado delimita un patio interior, contemplativo, donde se vuelcan los dormitorios a la mejor orientación, y uno de los lados del estar-comedor, grandes carpinterías corredizas hacen que una vez abiertas, el estar este totalmente integrado al patio y galería.

Por la pendiente del terreno hacia el fondo la piscina articulada con la galería resulta una pieza de hormigón a modo de barca sobre elevada en el terreno.

Es una casa totalmente sustentable, puede desenchufarse de la red eléctrica, paneles solares, termo tanques solares, el no uso de gas y domótica refuerzan la idea de autonomía.