Farmacias Soy

Buenos Aires

Proyecto desarrollado en conjunto con Crossover Full Agency

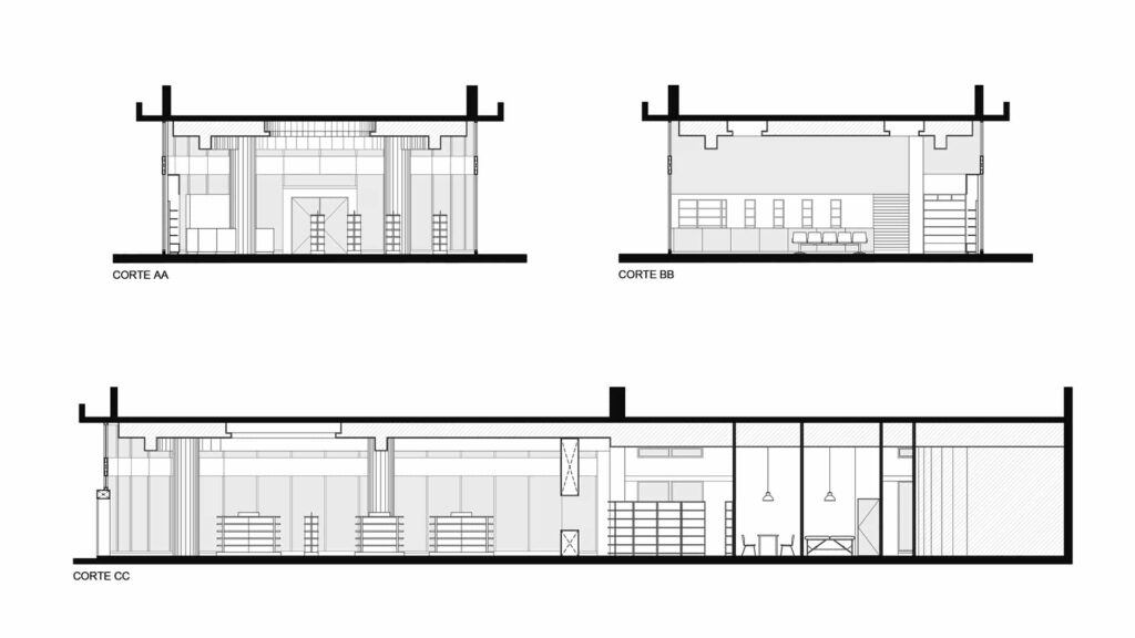
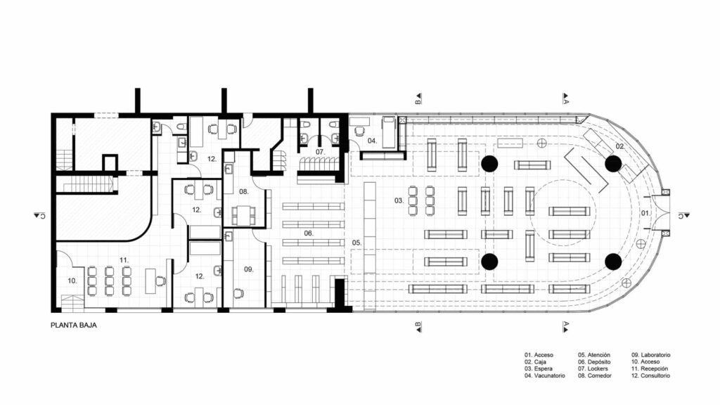
Se creó una imagen totalmente diferente para la cadena de farmacias que paso de la atención clásica, personal al concepto de espacios de venta libre, sector de farmacia medicada y un nuevo sector de perfumería.

Espacios bien definidos para la atención de los clientes, más dinámicos y de fácil acceso. 

Farmacia, salón de venta libre, perfumería, cajas de pagos y áreas de atención médica.

Este nuevo concepto se volcó a un manual instructivo para futuras franquicias.

LOCALIZACIONES

CABA

QUILMES

BERAZATEGUI

SOLANO

EZPELETA

F.VARELA