Dividido en 2 etapas primero las áreas comunes y luego las oficinas.
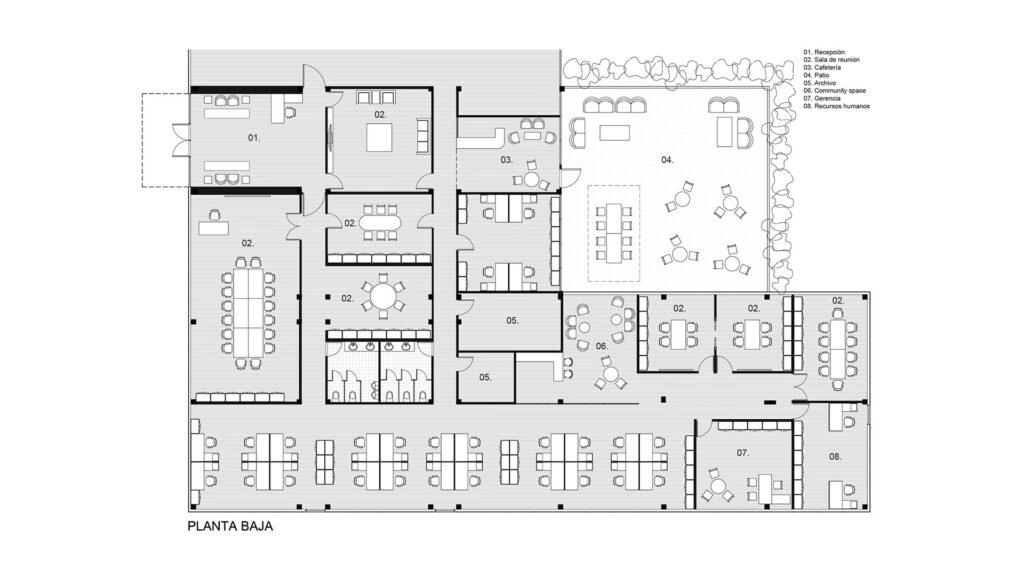
Con los cambios de las formas de trabajo paso de una planta subdividida y poco flexible a un espacio de planta libre, fácil de cambiar el layout según los cambios de formas de trabajo.
En las oficinas los únicos espacios cerrados son las salas de reuniones, directores, gerencias y puesto operativos están en islas de trabajo en un layout totalmente abierto.
En general este tipo de oficinas generan un alto nivel de resonancia y ruido, esto se soluciona a la hora de tener privacidad con las salas de reuniones y phone booths y con materiales fono absorbentes.