



















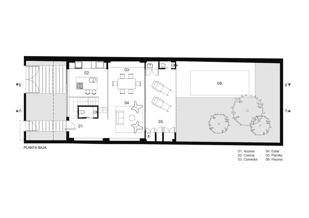
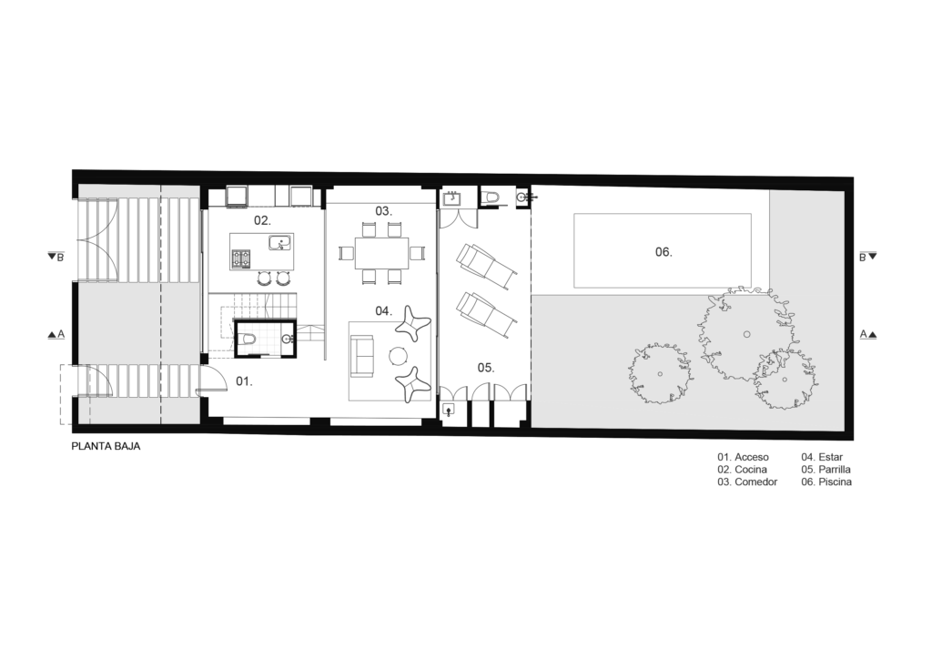
Casa compacta, un cubo socavado solo por el acceso al frente y la galería a contra frente.
La transparencia de la planta baja desdibuja los límites del cubo.
La estructura de hormigón apoya en las medianeras del terreno, liberando de columnas y vigas las superficies de las plantas, están expuestas las losas de hormigón solamente.
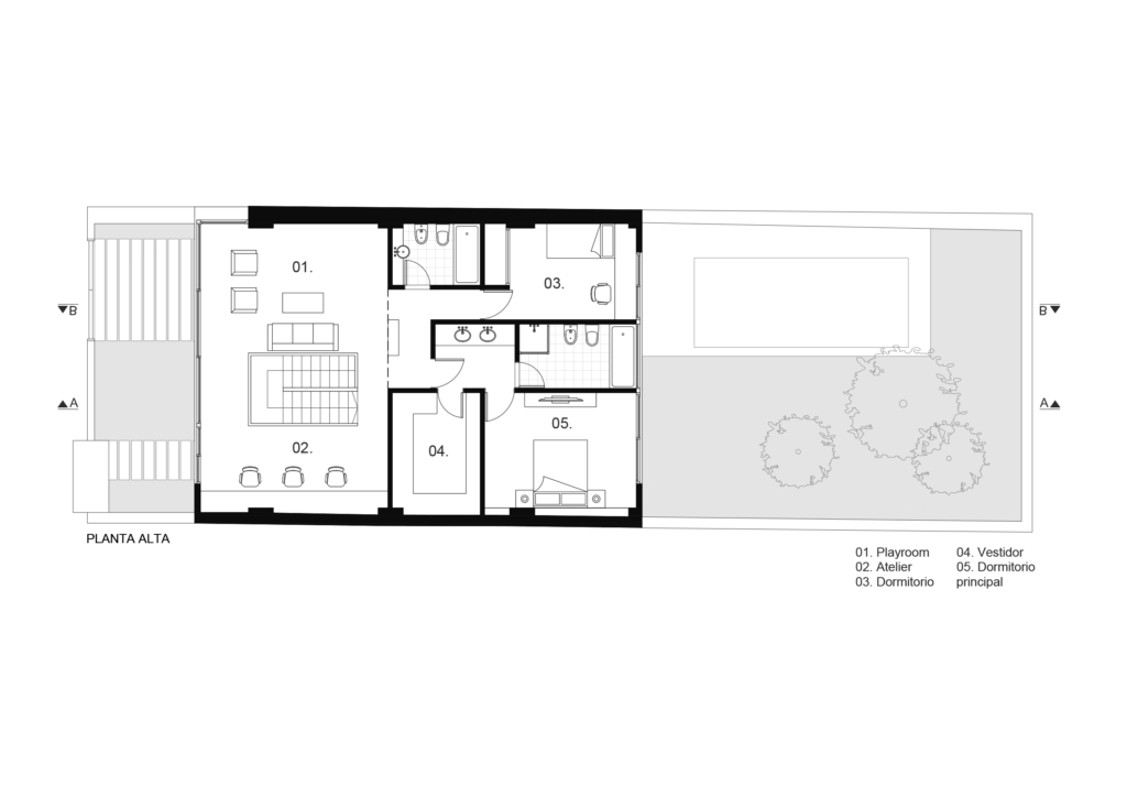
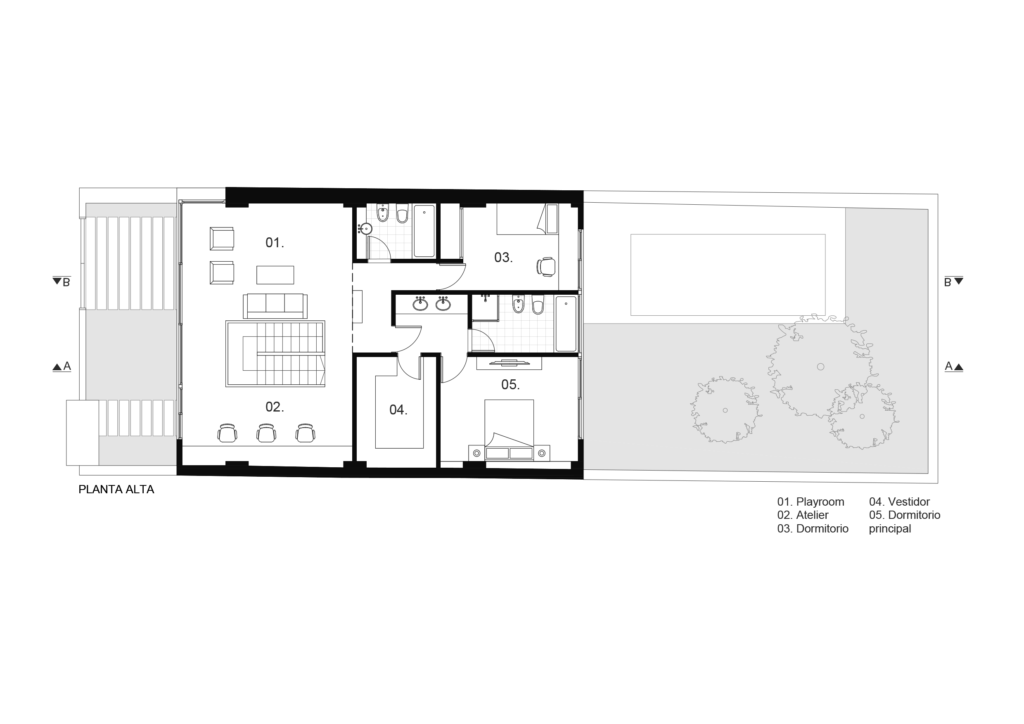
Los niveles se definen por los usos, subsuelo cava , habanos y poker . Planta baja area social, hall, estar -comedor, cocina. En planta alta un gran loft hacia la calle, area de TV, escritorio y gym, (a futuro pueden ser dormitorios), dormitorio de huéspedes y suite.
La escalera vincula los 3 niveles de la vivienda, combinación de metal y madera, va tomando distintas formas en los niveles.
La galería se conecta con el jardín y la piscina lateral, buscando el sol.
Síntesis en el uso de materiales, hormigón, placas de piso gris, paredes blancas, aluminio natural y madera teñida blanca en pisos planta alta.