Ir al contenido
Menu
Inicio
Espacios Comerciales
Viviendas
En Altura
Oficinas
Concursos
Contacto
Inicio
Espacios Comerciales
Viviendas
En Altura
Oficinas
Concursos
Contacto
Menu
Inicio
Espacios Comerciales
Viviendas
En Altura
Oficinas
Concursos
Contacto
Instagram
Linkedin
LBH
Vicente López
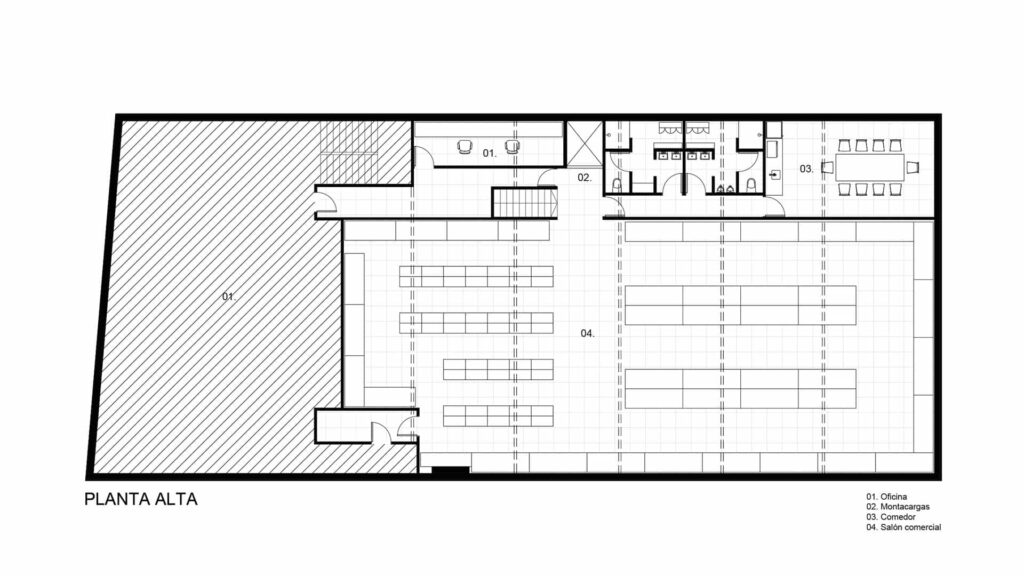
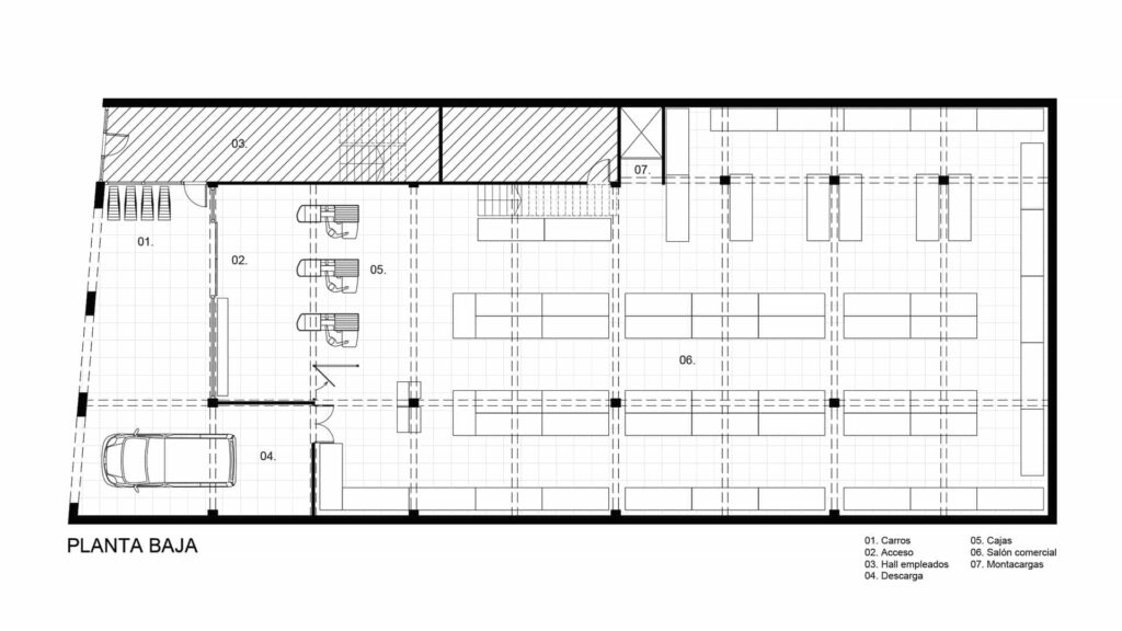
Sup total 600 m2